Eagles Nest - Palm Room

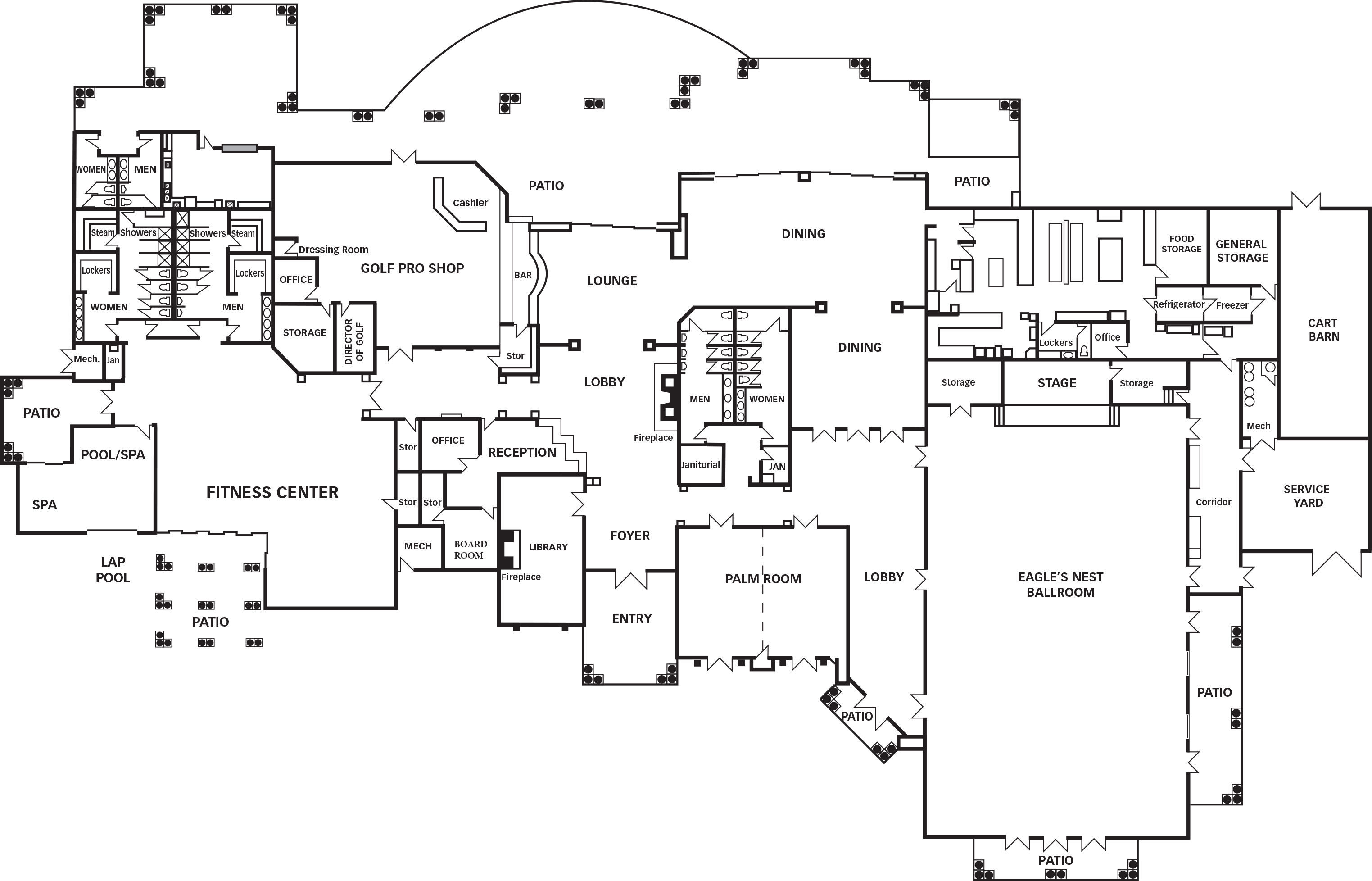
Eagles Nest Clubhouse Floorplan

EN Clubhouse Floorplan